大曲げ加工品
角波折り曲げ板
特長
- ステンレス製厚肉(1.5.2.0㎜)、長尺(4m.5m)が可能。
- 精度の高いベンダー加工、ご指定の穴あけ加工も可能。

■製造可能範囲
・ 山数:4.6.8.10.12個
・長さ:4m.5m
■主な用途
食品加工タンクの保温部材
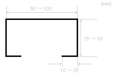
C型チャンネル


■製造可能範囲
・板厚:1.5㎜ 及び 2.0㎜
・長さ:3M ~ 4M
■主な用途
つり下げ幕(広告用懸垂幕)のガイドレール

■製造可能範囲
・ 山数:4.6.8.10.12個
・長さ:4m.5m
■主な用途
食品加工タンクの保温部材


■製造可能範囲
・板厚:1.5㎜ 及び 2.0㎜
・長さ:3M ~ 4M
■主な用途
つり下げ幕(広告用懸垂幕)のガイドレール